濰坊云海機械設備有限公司
全國服務熱線:400-600-0877
聯系人: 馮經理 13864611638
電 話:0536-3126558 0536-3126557
傳 真:0536-3126228
技術部電話:0536-3697266 0536-3697277
技術部傳真:0536-3698277
國際業務部郵箱:Darcywang1997@outlook.com
聯系人:王經理 15621775783
地 址:山東臨朐縣楊善工業園冶泉路401號
咨詢電話:400-600-0877
60秒人工響應
30分鐘給予技術答復
24小時免費定制方案
濰坊云海機械設備有限公司始建于2009年,主要產品工業自動化配料系統、電磁永磁除鐵器、永磁磁選機、電磁振動給料機、皮帶螺旋輸送機、電磁滾筒、破碎機、包裝機 、除塵器等系列產品。擁有設備齊全的實驗室和化驗室,聘請行業專家主持試驗和化驗工作,提供技術試驗數據和研發依據,為各行業提供成功有效的除鐵解決方案。
云海機械成立
磁電實力廠家
發明專利
產品覆蓋
RCYT系列永磁筒
產品介紹
RCYT系列永磁筒式管道除鐵器主要用于過濾粉體或顆粒狀物料中的鐵磁性雜質。安裝于粉狀物料輸送管道中貨管路進出口,將物料中的鐵磁性雜質分離出來。內部采用釹鐵硼材料組成環狀磁系,圓錐形體。料層均勻、順暢、活動式門扣,去除雜質方便。一般通過法蘭或抱箍連接在生產線上,尺寸較小的也可以通過快速卡箍連接,該設備多適用于糧食、化工、建材等行業。
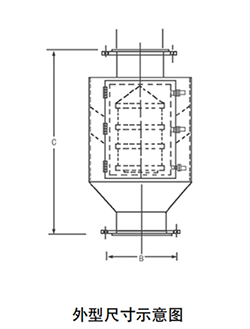
外形尺寸圖及安裝示意圖
RCYA系列永磁筒式管道除鐵器包括無磁管道和永磁鐵兩部分,專用于對封閉管道內非磁性物料的除鐵。永磁除鐵器內部采用高性能的硬磁材料組成復合磁系。具有體積小、磁力大、重量輕、除鐵干凈、方便。無能耗、使用壽命長等特點。適合沒有輸送皮帶,只能提供下料溜槽的場合。當散狀物料經過管道式永磁鐵除鐵器時,鐵雜物被高場強的永磁鐵所吸附,去除鐵雜質時,打開管道專用門將雜質取除。主要應用于水泥、化工、塑料、耐火材料、建材等行業的下料管道中去除雜物。


技術參數
| 參數/項目/型號 | 適應產量T/h | 磁場強度≈ mT | 給料粒度mm | 外型尺寸mm | 重 量kg | |||
| A | B | C | ||||||
| RCYT—5 | 5 | 70 | 0.3 ~ 6.0 | 219 | 300 | 600 | 80 | |
| RCYT—10 | 10 | 70 | 0.3 ~ 8.0 | 245 | 330 | 800 | 150 | |
| RCYT—20 | 20 | 70 | 0.3 ~ 8.0 | 273 | 360 | 900 | 231 | |
| RCYT—30 | 30 | 70 | 0.4 ~ 10.0 | 325 | 415 | 1000 | 266 | |
| RCYT—50 | 50 | 90 | 0.4 ~ 10.0 | 377 | 470 | 1100 | 380 | |
| RCYT—80 | 80 | 90 | 0.6 ~ 15.0 | 450 | 540 | 1300 | 426 | |
| RCYT—100 | 100 | 90 | 0.6 ~ 15.0 | 530 | 630 | 1500 | 518 | |
產品圖片




現場安裝



